Продукция
Энерготехнологические котлоагрегаты
Поставщик: ООО "Белэнергомаш-БЗЭМ"

К энерготехнологическим котлам относятся установки, без которых основной технологический процесс не может протекать или претерпевает существенные изменения при их отключении. К таким относятся системы принудительного охлаждения технологических агрегатов, а также котлы для охлаждения продукционных потоков.
Паровые котлы средней мощности
Поставщик: ООО "Белэнергомаш-БЗЭМ"

В промышленности и на тепловых электростанциях широко распространены котлы для выработки водяного пара различных параметров с естественной или принудительной циркуляцией принципиально различающиеся только организацией гидродинамики в испарительных поверхностях нагрева.
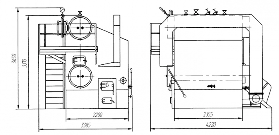
Поставщик: ООО «ПО «МЭС»

ООО “ПО ”МЭС” Проектирует и изготавливает паровые котлы паропроизводительностью от 25 до 640 тонн в час.
Паровой котел, парогенератор ECO-PAR 0,7 бар 100 - 10000 кг/ч
Поставщик: ООО «КЗКЭО «Энерго-Стандарт»
Паровые жаротрубные котлы малой, средней и большой мощности. Благодаря трехходовой конструкции паровое котлы имеет высокий коэффициент полезного действия. Паровые котлы по запросу клиента могут быть укомплектованы двумя модулируемыми горелками, что регулирует нагрузку. Работа в рамках широкого диапазона важна для производств с циклической нагрузкой.
Паровой котел ECO-PAR 10 бар 150-10000 кг/ч
Поставщик: ООО «КЗКЭО «Энерго-Стандарт»
Паровые котлы (парогенераторы) 10 бар стальные жаротрубные с инверсией пламени, цилиндрической топки с омываемым днищем, двухходового типа исполнения.
Выработка насыщенного пара температурой до 185 °С
Производительность от 0,1 до 10 т/ч при давлении пара до 1,0 МПа.
Паровой котёл ECO-PAR 16 бар 1000 - 10000 кг/ч
Поставщик: ООО «КЗКЭО «Энерго-Стандарт»
Паровые котлы серии ECO-PAR – это стальные жаротрубные горизонтальные паровые котлы. Котлы могут быть изготовлены по следующим типам исполнения: прямоточные, двухходовые и трехходовой, с производительностью 1000-10000 кг/ч.
Паровой котел, парогенератор для РБУ
Поставщик: ООО «КЗКЭО «Энерго-Стандарт»

Парогенераторы и паровые котлы ECO-PAR повышают конкурентоспособность бетонного завода при получении заказов.






